• ГЛАВНАЯ
  • ЗАКОНОДАТЕЛЬНАЯ БАЗА
  • ТЕХНИЧЕСКАЯ ДОКУМЕНТАЦИЯ
  • ГАЛЕРЕЯ
  • КОНТАКТЫ
AS-10.22.005 

MonoSpace® Special Инструкция по обслуживанию и ремонту ИНСТРУКЦИЯ ПО РЕМОНТУ КОНТРОЛЛЕРА В ШАХТЕ ТИПА LCEBM AS-10.22.005 2001-10-30


AS-09.11.004 

KONE MonoSpace® Руководство по обслуживанию ИНСТРУКЦИЯ ПО ИЗМЕРЕНИЮ ПРОСКАЛЬЗЫВАНИЯ КАНАТА AS-09.11.004 03-09-2009


ВЕРСИЯ 3.0 AM

KONE MonoSpace® 3.0 Инструкция no установке KONE MONOSPACE®, ВЕРСИЯ 3.0 AM-01.01.250 2012-10-16


AM-01.01.026

KONE MonoSpace® 2.5 Инструкция по монтажу AM-01.01.026


AM-01.01.026

KONE MonoSpace® 2.2 Инструкция по монтажу AM-01.01.026-AP9


AM-01.01.026

KONE MonoSpace® 2.2 и 2.3 Инструкция по вводу в эксплуатацию AM-01.01.026-AP9


AM-01.01.026

KONE MonoSpace® 2.1 Инструкция по монтажу AM-01.01.026


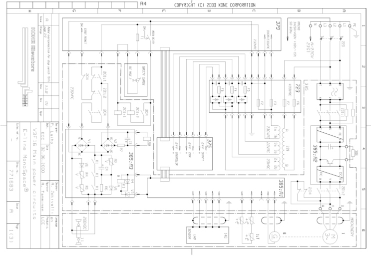
V3F16

Электросхема V3F16


EXP-03.04 2003-11-05

ЭКСПРЕСС ИНФОРМАЦИЯ Программное обеспечение LCE MonoSpace NoCabine t ПРОГРАММНОЕ ОБЕСПЕЧЕНИЕ LCE MONOSPACE NOCABINET EXP-03.04 2003-11-05


MX20 EXP-03.03 

ЭКСПРЕСС ИНФОРМАЦИЯ Верхние кронштейны лифтов MonoSpace Special MX20 EXP-03.03 2003-08-25


UM-01.02.002 

ЭВАКУАЦИЯ ПАССАЖИРОВ из лифтов KONE MonoSpace® со шкафом управления на верхнем этаже UM-01.02.002 2001


UM-01.02.009 

ЭВАКУАЦИЯ ЛЮДЕЙ из лифтов KONE MonoSpace® или KONE TranSysTM с Сервисной панелью (модуль V3F18) UM-01.02.009 2004-10-29


AM-11.65.042

Система привода KDM для MonoSpace® Инструкция по монтажу СИСТЕМА ПРИВОДА KDM ДЛЯ MONOSPACE® И MONOSPACE®SPECIAL МОНТАЖ, ВВОД В ЭКСПЛУАТАЦИЮ И ПРОВЕРКА НА ПРЕДМЕТ СОБЛЮДЕНИЯ ТРЕБОВАНИЙ ТЕХНИКИ БЕЗОПАСНОСТИ AM-11.65.042


AM-11.65.042

Система привода KDM для MonoSpace® Инструкция по монтажу СИСТЕМА ПРИВОДА KDM ДЛЯ MONOSPACE® И MONOSPACE® SPECIAL МОНТАЖ, ПУСКОНАЛАДОЧНЫЕ РАБОТЫ И ПРОВЕРКА БЕЗОПАСНОСТИ AM-11.65.042


AM-11.65.030

Привод KDL32 для платформ MonoSpace® Инструкция по монтажу ВВОД В ЭКСПЛУАТАЦИЮ И ПРОВЕРКА БЕЗОПАСНОСТИ ПРИВОДА KDL32 ДЛЯ ЛИФТОВ БЕЗ МАШИННОГО ПОМЕЩЕНИЯ (МОДЕЛЬ MONOSPACE®) AM-11.65.030


KDL32 AM-11.65.030

Привод KDL32 для платформ MonoSpace® Инструкция по монтажу ВВОД В ЭКСПЛУАТАЦИЮ И ПРОВЕРКА БЕЗОПАСНОСТИ ЛИФТОВ MONOSPACE® С ПРИВОДОМ KDL32 AM-11.65.030


KDL16LR AM

Привод KDL16LR для платформ MonoSpace® Инструкция по монтажу ВВОД В ЭКСПЛУАТАЦИЮ И ПРОВЕРКА БЕЗОПАСНОСТИ ЛИФТОВ БЕЗ МАШИННОГО ПОМЕЩЕНИЯ С ПРИВОДОМ KDL16LR AM-11.65.031


AM-01.01.255

МОНТАЖ KONE N MONOSPACE™ БЕЗ ИСПОЛЬЗОВАНИЯ ЛЕСОВ AM-01.01.255


NMX11 AM-01.01.046

МОНТАЖ KONE MONOSPACE® SPECIAL ДЛЯ МЕХАНИЗМОВ MX05, MX10, MX14, NMX07 И NMX11 AM-01.01.046


V3F18 AM-01.010.049

МОНТАЖ ЛИФТОВ MONOSPACE® SPECIAL ДЛЯ ПРИВОДОВ МХ10 И МХ20 С МОДУЛЕМ ПРИВОДА V3F18 AM-01.010.049


V3F18 MX20 AM

МОНТАЖ ЛИФТОВ KONE MONOSPACE® SPECIAL ДЛЯ ЛЕБЕДОК MX20 С ПРИВОДАМИ V3F18 MX20 AM-01.01.049


MONOSPACE R2.XFL

Контроллер LCE в лифтах на базе MonoSpace 2.X Отраслевое письмо НАДЕЖНОСТЬ И БЕЗОПАСНОСТЬ СОЕДИНЕНИЯ СИЛОВОГО КАБЕЛЯ ПИТАНИЯ В ЛИФТАХ MONOSPACE R2.XFL-10.60.030 2004-09-29


2,0 - 3,0 МС AM-AP1

Инструкция по монтажуKONE MONOSPACE SPECIAL® С НОМИНАЛЬНОЙ СКОРОСТЬЮ 2,0 - 3,0 МС AM-01.01.049-AP1


AM-1.1.26

ИНСТРУКЦИЯ ПО МОНТАЖУ AM-1.1.26 МОНТАЖ ЛИФТОВ MONOSPACE TM


Пожаловаться на контент cайта в Битрикс24